What is the MINIMUM clearance needed between the front of the telephone booth and any wall or
fixture for most installations?
C
Exhibit:
A pay telephone using coins needs to be installed in a public are
a. In the specifications, it is required that the telephone shall meet the ADA (Americans with
Disability Act) requirement for side reach using a wheelchair. What will be the maximum reachable
height or the value of "X"?
E
A telephone facility and an electrical facility are required in a tunnel. To reduce the effects of EMI and
eliminate the need for additional shielding of the cables, where would each facility be placed?
A
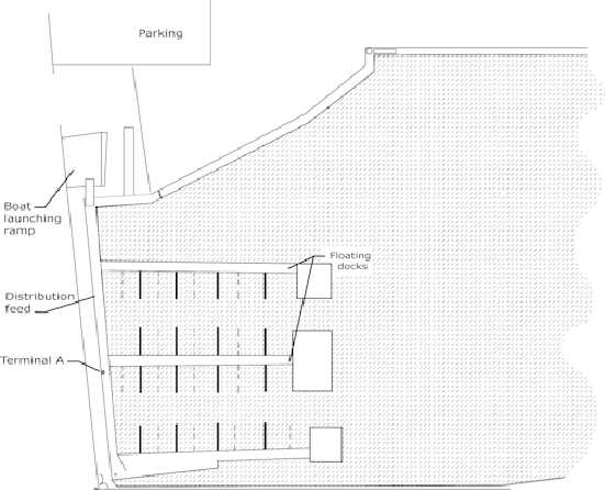
Exhibit:
In this future marina layout, what would be the pre-cabling guideline to follow for the terminal A?
A
Which type of protection for electrical power stations provide isolation against a rise in potential of
station ground and also provide drainage protection against longitudinally-induced voltages?
A
Exhibit:
In this future marina layout, assuming that there are fewer than 10 slips being cabled, what would be
the pre-cabling guideline to follow for terminal A?
A
What is the air change requirement for a tunnel of 610 m (2000 ft) long with a diameter of 3.4 m (11
ft)?
C
In new construction, what is the percentage of pay phones that must be equipped with volume
controls?
C
Exhibit:
What does this international symbol stands for?
A
Coupling with electrical circuits can create inductive interference to telecommunications facilities.
Which of the following can decrease the coupling effect?
A
One interior TTY must be provided at locations defined as public accommodations with ________ or
more pay telephones.
C
In an office area, a consultant needs to add the location of a fax machine to the plan. What is the
approximated floor area that a fax machine occupies?
C
What is the MINIMUM distance from the edge of a pool or other water hazards for a weatherproof
enclosure?
D
Exhibit:
A pay telephone using coins needs to be installed in a public are
a. In the specifications, it is required that the telephone shall meet the ADA (American with
Disabilities Act) requirement for front reach using a wheelchair. What will be the maximum
reachable height or the value of "X"?
D
You are designing distribution for a seven unit townhouse with in slab conduits. What is the
MINIMUM number of 27 mm (1 in) rigid PVC Type 2 or metallic conduit that is required to satisfy
distribution to each unit?
D